Eladó ház / családi ház

  • Kód: #61654
  • Hely: Budapest , XX.
  • Típus: ház
  • Ár: 90 000 000 HUF
  • Méret: 200 m2
  • Méret: 358 m2
  • Szoba: 4 + 1 fél szoba
  • Állapot: jó állapotú
  • Komfort: duplakomfortos
  • Fűtés: gázcirkó, vegyes tüzelésű kazán
  • Fürdő és wc: egy helyiségben
  • Lift: -
  • Erkély: 20.0 m2
  • Tájolás: -
  • Kilátás: kertre néző
  • Parkolás: garázs
  • Belmagasság: -
  • Épület szint: 2
  • Emelet: -
  • Panelprogram: -

Az ingatlanról

/61654/

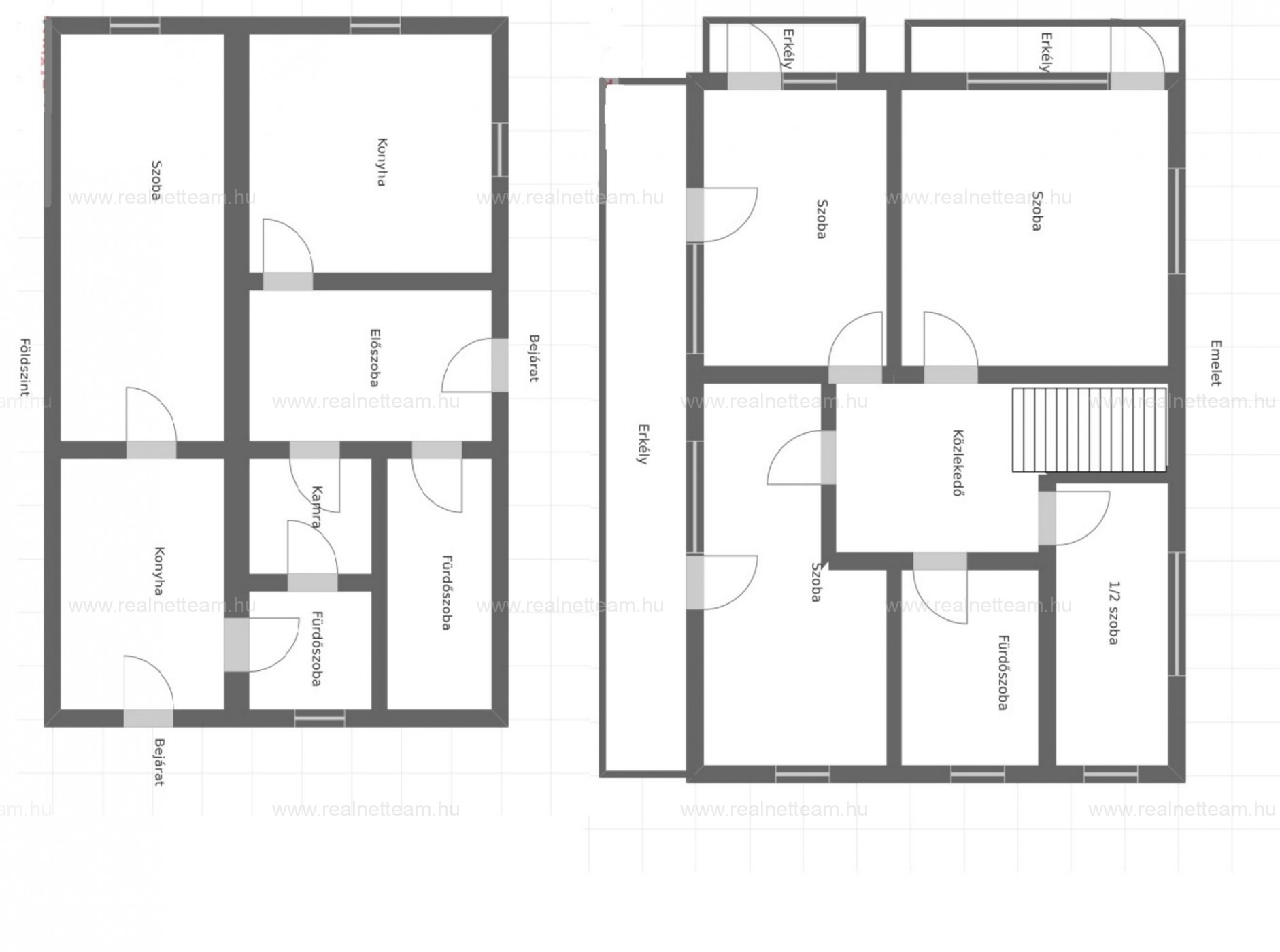
Bp. XX. kerületben, 358nm-es összközműves, telken belül körbejárható, 200 m2 összlakóterű, két generációs családi ház eladó. A földszinten egy 20m2-es fedett teraszról van a bejárat, a közlekedőből nyíló tágas világos étkezőkonyhába. A zuhanyzós kivitelű fürdőszoba mellett helyezkedik el a kamra, ahonnan a 20m2-es pincébe van a lejárat. Az emeleten 3.5 külön bejáratú szoba lett kialakítva, a 3 szobának erkély kapcsolata is van. Az emeleten szintén zuhanyzós fürdőszoba található. Külső bejárattal egy szoba, világos tágas étkezőkonyha, fürdőszoba helyiségekből álló külön lakrész lett kialakítva, mely előtt szintén egy fedett terasz helyezkedik el. Az 1986-ban épült, lapostetős, külső szigeteléssel ellátott ingatlan 2 gk. beállására alkalmas garázzsal rendelkezik. A családi ház gázcirkó fűtésű és vegyes tüzelésű kazánnal is ellátott. A két generációs ingatlan elosztását tekintve több generáció nyugodt együttélésére alkalmas. Hívjon, nézzük meg együtt!



Vélemények a munkatársról

Kapcsolat felvétel

Realnetteam Ingatlan Iroda

Majoros Anikó

irodavezető

reg.szám: 08241

majorosaniko@realnetteam.hu

+36-70-312-22-22

További ingatlanok

Részletek

Eladó

  • 59 m2
  • 2
  • 43 000 000 HUF

Eladó házrész

Budapest XX.

Részletek

Eladó

  • 57 m2
  • 1 + 1 fél szoba
  • 59 990 000 HUF
Részletek

Eladó

  • 42 m2
  • 1 + 1 fél szoba
  • 25 500 000 HUF
Részletek

Eladó

  • 237 m2
  • 6 + 2 fél szoba
  • 159 900 000 HUF